web analytics

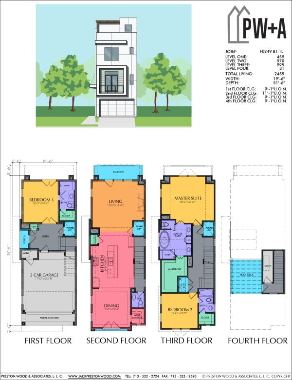
3 1/2 Story Townhome Plan F0249 B1.1L

Additional information

Foundation Width

Foundation Depth

SQFT

Floors

,

Front Door

Garage

,

Master

,

Living

,

Cars

Cantilever

, ,

This townhome plan has a width of 19′-6” and a depth of 51′-6”. It includes three bedrooms and 3 1/2 baths. Highlights include space for an elevator, the potential wine bar, the spacious master suite, and a cozy roof deck! Also check out F0249 A1.1, F0249 A2.2, and F0249 B1.2 as they pair well with this plan.

  • LEVEL ONE: 459
  • LEVEL TWO: 970
  • LEVEL THREE: 995
  • LEVEL FOUR: 31
  • TOTAL LIVING: 2455

What’s included with your plan:

  • Reproducible PDF, Delivered Within 48 Hours
    •  Floor Plans
    •  Elevations
    •  Sections
    •  Millwork (depending on plan)
    •  Electrical Plans
    •  Foundation Outline
    •  Roof Plan
    •  General Detail Sheet
    •  Each Plan is Single Use

$1,500.00

CAN’T FIND WHAT YOU’RE LOOKING FOR?
Modify an existing plan
product-img

Product Title

Description