web analytics

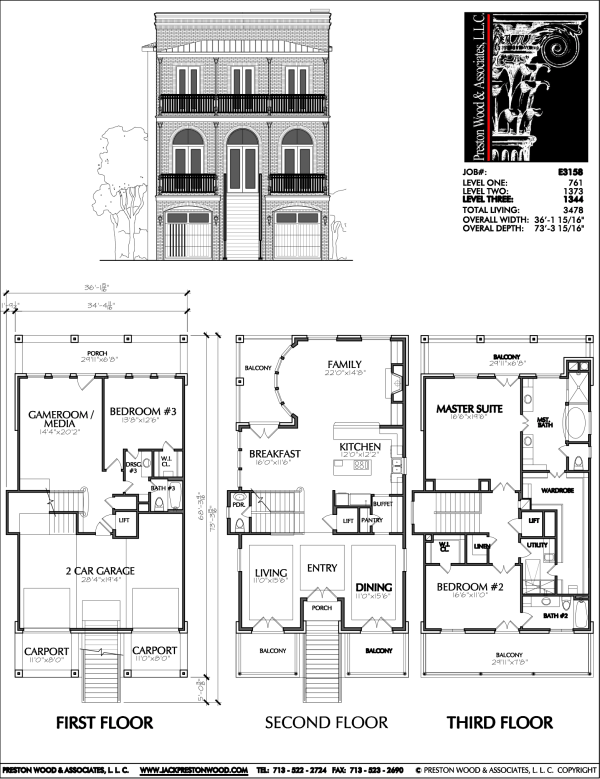
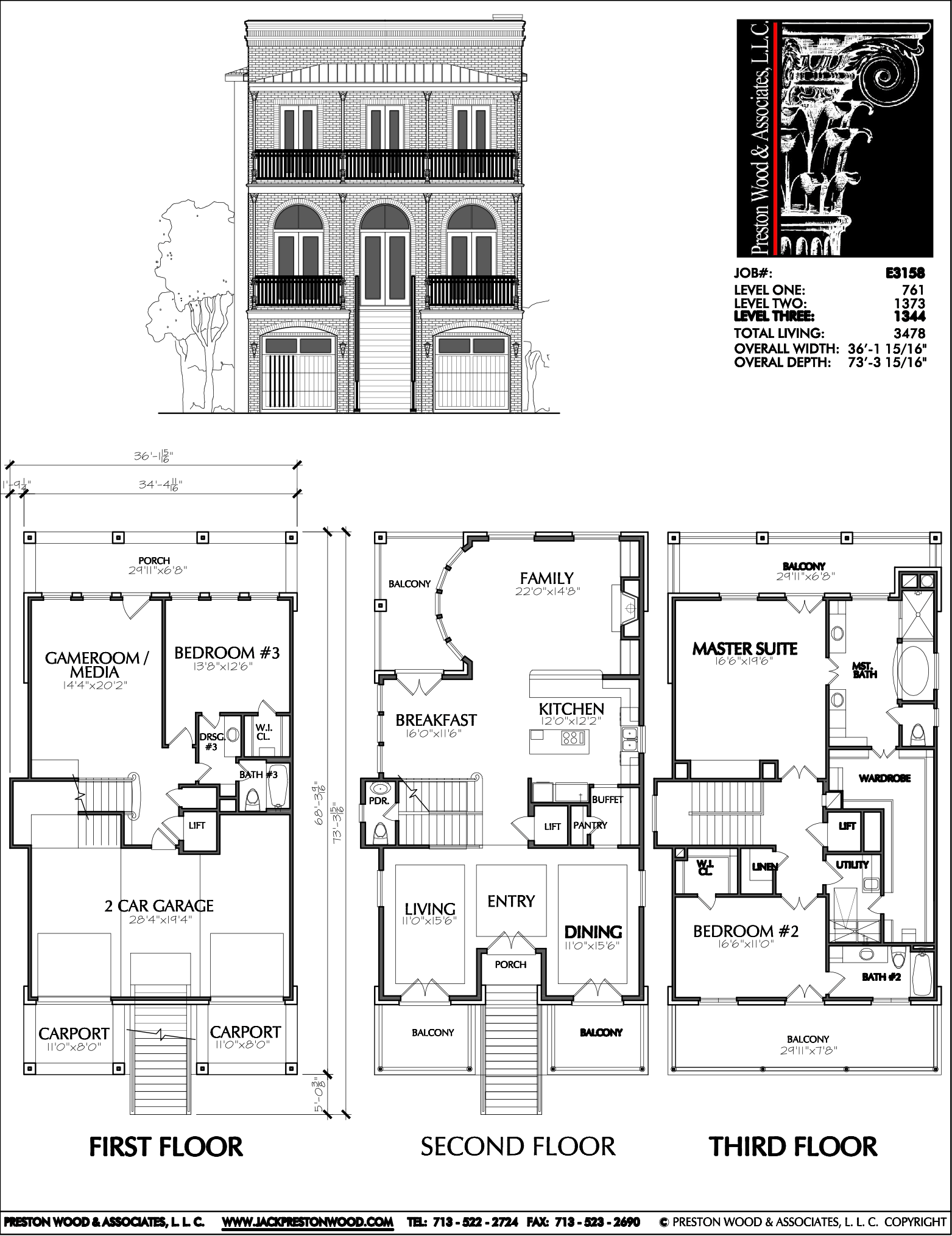
Three Story Urban Home Plan E3158

Additional information

Foundation Width

Foundation Depth

SQFT

Floors

Garage

,

Cars

Front Door

Living

,

Master

,

Bedrooms

3

Baths

4

The measurements of this plan are a width of 36′-2″ and a depth of 73′-4″. This plan has three bedrooms and 3 1/2 baths. Highlights include a beautifully spacious master suite with a private balcony, three balconies off of the second floor, and a game room.

  • LEVEL ONE: 761
  • LEVEL TWO: 1373
  • LEVEL THREE: 1344
  • TOTAL LIVING: 3478

What’s included with your plan:

  • Reproducible PDF, Delivered Within 48 Hours
    •  Floor Plans
    •  Elevations
    •  Sections
    •  Millwork (depending on plan)
    •  Electrical Plans
    •  Foundation Outline
    •  Roof Plan
    •  General Detail Sheet
    •  Each Plan is Single Use

$1,500.00

CAN’T FIND WHAT YOU’RE LOOKING FOR?
Modify an existing plan
product-img

Product Title

Description