web analytics

3 1/2 Story Duplex Townhouse Plan D5153 A2 & A Flipped

Additional information

Foundation Width

,

Foundation Depth

SQFT

Cars

Floors

,

Front Door

Garage

,

Living

,

Master

,

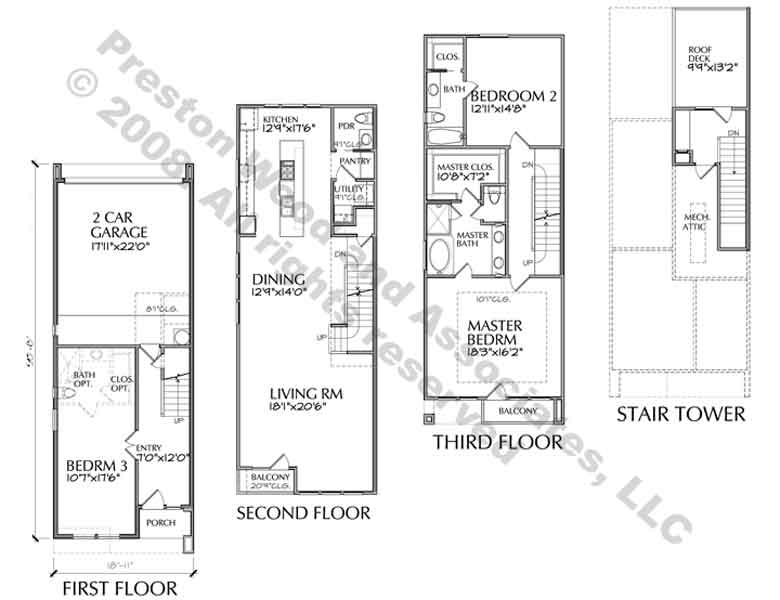
This townhome plan has 2430 square ft. of living space. This townhouse plan design has a depth of 52′-8″ and a width of 18′-11″.

  • LEVEL ONE: 466
  • LEVEL TWO: 970
  • LEVEL THREE: 933
  • ROOF LEVEL: 63
  • TOTAL LIVING: 2430

What’s included with your plan:

  • Reproducible PDF, Delivered Within 48 Hours
    •  Floor Plans
    •  Elevations
    •  Sections
    •  Millwork (depending on plan)
    •  Electrical Plans
    •  Foundation Outline
    •  Roof Plan
    •  General Detail Sheet
    •  Each Plan is Single Use

$2,250.00

CAN’T FIND WHAT YOU’RE LOOKING FOR?
Modify an existing plan
product-img

Product Title

Description